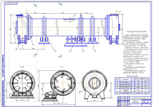
Главная » Чертежи » Чертеж барабанной сушилки (КОМПАС) Чертеж барабанной сушилки (КОМПАС) Чертежи 18.11.2025 236 Метки сушильные установки сушка Чертеж барабанной сушилки (КОМПАС) Формат чертежа: А1 Формат файла: *.cdw (КОМПАС) Скачать — Чертеж барабанной сушилки (КОМПАС) >> Интересно также: Чертеж котла ДЕ-16-14 ГМ Чертеж сушка барабанная (AutoCAD) Чертеж установки абсорбционной — Технологическая схема с КИП и А